- Prenájom nehnuteľností
- Obchodné priestory
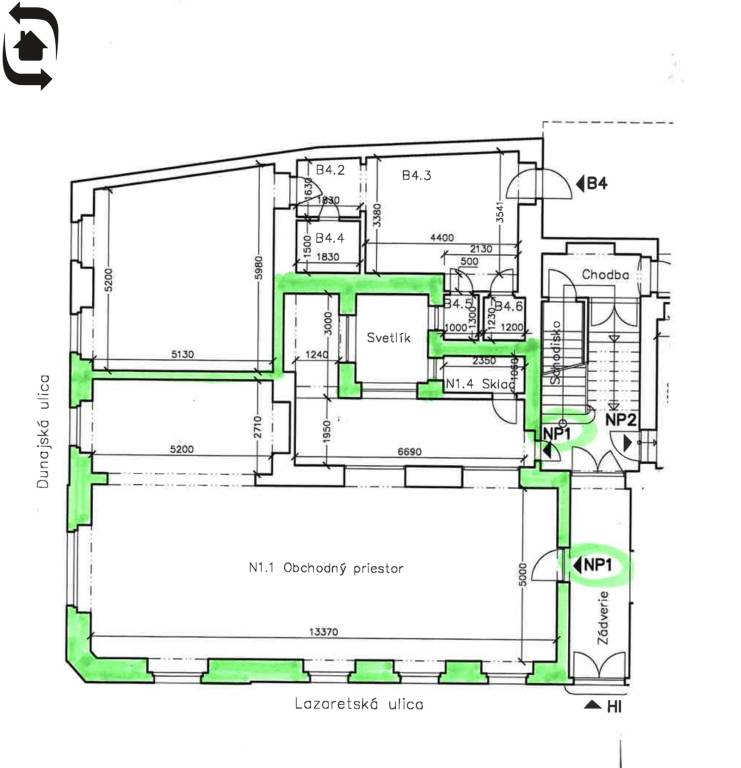
- Obchodný priestor na Lazaretskej ulici na prenájom
Obchodný priestor na Lazaretskej ulici na prenájom
Zobraziť fotogalériu (2 fotografií) Lazaretská ulica (Staré Mesto, BA I.) - Dlhodobo prenajmeme nezariadený obchodný priestor o výmere 104m2 na prízemí bytového domu, s kuchynkou a WC. priestor má vlastný kotol ÚK (elektrický).
Prístup do priestoru je priamo z Lazaretskej ulice a má výklady do dvoch strán.
Priestor je možné využť ako obchod, kancelária, show-room, atď….
K dispozícii od 01.01.2026
Cena: 2.100,-EUR + E
Podrobné informácie
prízemie
104 m²
104 m²
čiastočne prerobený
aktívne
tehla
00421905618585
Slovensko
Bratislava - Staré Mesto
Bratislava - Staré Mesto
Lazaretská
Obchodné priestory
prenájom
- 17. október 2025 16:43 hod
- poslať správu
- poslať ponuku na e-mail
- dohodnúť prehliadku objektu
- vytlačiť ponuku
Poloha nehnuteľnosti na mape
Pre viac informácií kontaktujte
Ing. Ingrid Ilavská


Telefón: 00421905618585
E-mail: ingrid.ilavska@rkilavska.sk
Rk Ing. Ingrid Ilavská
Lazaretská 13
Bratislava
81108
Telefón:
Mobil: +421 905 618 585, +421 903 244 026, +421 903 430 844
E-mail: ingrid.ilavska@rkilavska.sk
Web: www.rkilavska.sk
Obchodné priestory / Bratislava - Staré Mesto / Obchodné priestory Bratislava - Staré Mesto prenájom



Rk Ing. Ingrid Ilavská, Lazaretská 13, Bratislava 81108, Tel.: , E-mail: ingrid.ilavska@rkilavska.sk